Vision
Delivering high-quality affordable homes to people living with disabilities
Purpose
Enabling independent living through choice of design and process
Communication
Developing a clear communication process with builders stakeholders & customers
Quality
We are innovated and through continuous improvement provide excellent outcomes
Commitment
We are committed to providing the best outcomes or our customers needs
Care
Our team will work together to ensure we provide total care to you throughout our process

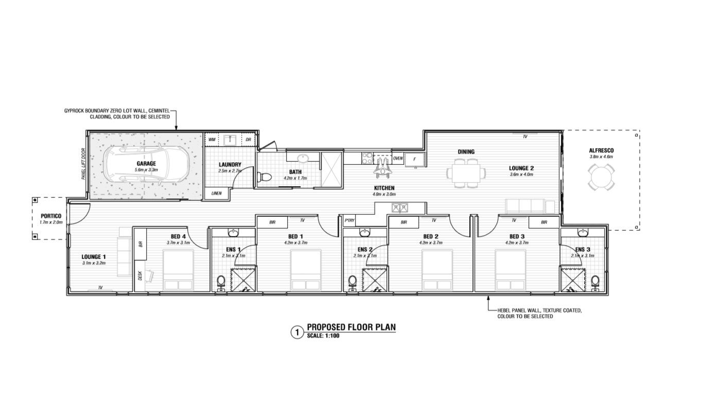
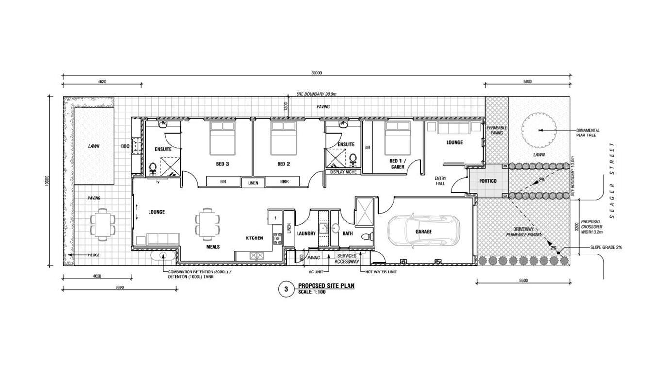
Investing in affordable homes for people living with a disability in South Australia.
The Gilles and the Eden
2 New brilliant Home Designs




Brand New 3 bedroom house in Gillman Estate

















